29
$948,000 Sale
Listed 19 hours ago
311 3727 W 10TH AVENUE
· 2
· 2.0
· 2
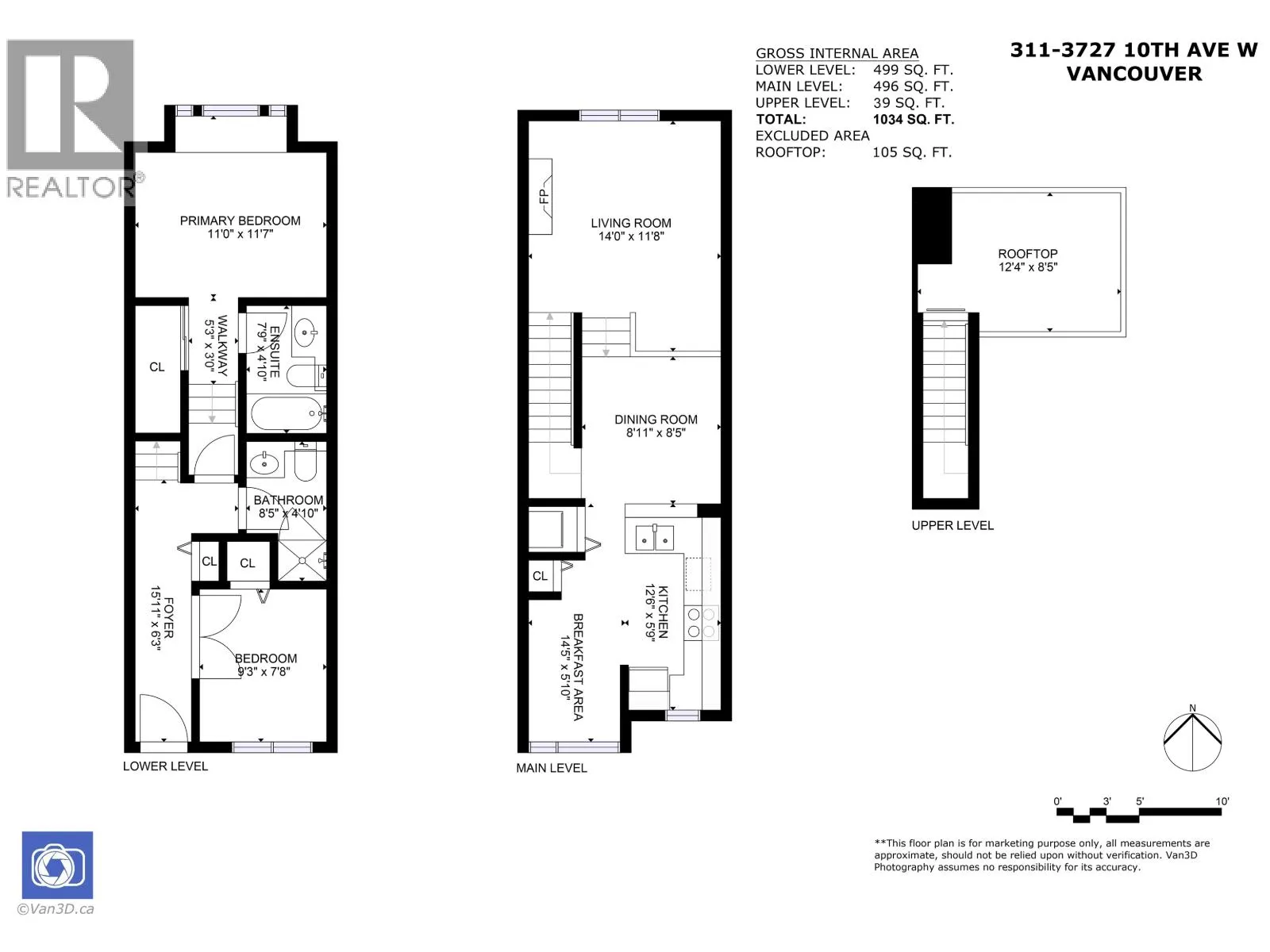
· 1034
Key Facts
Key facts for 311 3727 W 10TH AVENUE
Property Type
Townhome, Row / Townhouse
Parking
Garage: No, 2 parking
MLS #
R3054246
Size
1034 sqft
Basement
-
Listed on
-
Lot size
-
Tax
-
Days on Market
-
Year Built
1999
Maintenance Fee
$494.22/mo
Description
Welcome to The Folkstone, a charming 2-bedroom, 2-bathroom townhome situated on the QUIET side of the building. This bright & airy residence features both north & south facing windows, providing natural light throughout the day & wonderful cross breezes. The unique reverse floorplan offers a living ...room complete w/a cozy gas fireplace, Juliet balcony, a dining area & kitchen, which includes a sunny south-facing breakfast nook/home office. Enjoy your rooftop deck boasting 360° city & mountain views, a perfect place to watch the fireworks! Primary suite, w/a lovely bay window & an ensuite bathrm & a S-facing bedrm w/French doors & an adjacent full bathrm. This home offers an unbeatable location w/convenient transit access to UBC & downtown. Everything you will need is closeby: Pacific Spirit Park, excellent schools (West Point Grey & St.George's), UBC Golf Course, hospital, restaurants, cafés, shopping & Jericho Beach. Building repiped in 2019. Quick completion ok. Pet & rental friendly. Open Houses Sat&Sun 2-4 (id:10452)
Similar Properties (No results)
Listing courtesy of: Macdonald Realty
This REALTOR.ca listing content is owned and licensed by REALTOR® members of The Canadian Real Estate Association.